LUCIE DE LAMMERMOOR musica di Gaetano Donizetti

Regia Jacopo Spirei
Scene Mauro Tinti

Costumi Agnese Rabatti
Luci Giuseppe Di Iorio

Nuovo allestimento della Fondazione Teatro Donizetti di Bergamo
Prima rappresentazione Festival Donizetti Opera 2023 – Teatro Sociale di Bergamo – 18 novembre 2023

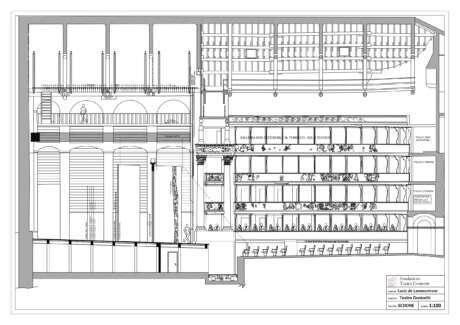
Scene Fondazione Teatro Donizetti – Bergamo
PROPS – Dekorajce
Fondazione Haydn – Bolzano
Rossetti Group
Costumi Fondazione Teatro Donizetti – Bergamo
Sartoria Teatrale Arrigo
Sartoria Baldrighi
NoWar Vintage
Calzature CTC Pedrazzoli – Milano
Parrucche Audello Teatro
Attrezzeria Fondazione Teatro Donizetti – Bergamo
Rancati – Milano
FM Scenografie
Pasticceria La Marianna
Dimensioni allestimento 16x12m da boccascena
Volumi per trasporto n° 1 motrice 9m
Documentazione disponibile su richiesta Dossier allestimento
Disegni tecnici CAD
Progetto luci
Fotografie di scena
Video DVD

Pianta e sezione 1:100

Ufficio allestimenti scenici Fondazione Teatro Donizetti:

Tel. 035.4160620
Tel.
035.4160621

E-mail allestimenti@fondazioneteatrodonizetti.org