LA FAVORITE musica di Gaetano Donizetti

Regia Valentina Carrasco
Scene Carlas Berga e Peter Van Praet

Costumi Silvia Aymonino
Luci Peter Van Praet

Nuovo allestimento della Fondazione Teatro Donizetti di Bergamo
in coproduzione con Opera National de Bordeaux
Prima rappresentazione Festival Donizetti Opera 2022 – Teatro Donizetti di Bergamo – 18 novembre 2022

Scene Fondazione Teatro Donizetti – Bergamo
Opera National de Bordeaux
Costumi Low Costume – Roma
Calzature CTC Calzature – Milano
Parrucche Audello – Torino
Attrezzeria Fondazione Teatro Donizetti – Bergamo
E. Rancati – Milano
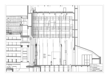
Dimensioni allestimento 18x12m da boccascena
Volumi per trasporto n° 2 bilici
Documentazione disponibile su richiesta Dossier allestimento
Disegni tecnici CAD
Progetto luci
Fotografie di scena
Video DVD

Pianta e sezione 1:100

Ufficio allestimenti scenici Fondazione Teatro Donizetti:

Tel. 035.4160620
Tel.
035.4160621

E-mail allestimenti@fondazioneteatrodonizetti.org